GTZB12型臂架式起落任务平台
利用概述
GTZB12型臂杆式起伏工作任务的平台,是一种款娇小玲珑娇小玲珑,操作矫捷方便的服务器,精美绝伦的思路使它并能所经流程无限大环境空间的国外进口超过所须求的确定的地位,储备情况下,高度如果0.8米,可简单所经流程单道门,直接史诗装备了无痕硅胶履带,很是最合适在户内根据。

该选果机器与同业业其他的书实例的半低空功夫品台比较,在不异功夫相对高度的生态环境下,规格尺寸更小,权重更轻,对地压强小,手袋出格混用于园地狭长的,经过情况差、楼内、装潢半低空等过量空气系数,其扩大的园地求同存异就要是其他的书同实例半低空功夫品台不能比较的。更比较适合于大东西仓库室内空间、大生产出来创作等产业
敞开心扉远程无线遥控器或车身触点开关制止支配,功夫自然靠经得住,传输速率快些
袖珍型构想,表面积小,吊装性能强,辞别了在狹窄室内空间会只不过充分发挥人力资源的任何的南北朝时期,既提高 了的任何打球又基本保障了的任何的自然性.
机能上风
课程高程度高,车体窄,参量轻,个人规划蓬松,支配概括,控制矫捷;地板上、发表双标准安全体系控制,后盖和工作任务斗都也能控制紫装的起降和转动,5个标准安全体系互锁,不会轻易误操控;支腿快捷调平/缩回,原带支腿失压沉静掩体,每种个支腿也可自力规范。卓越的伸缩曲臂,可360度水能力弯曲,可140度向下张开,可矫捷超过作业情况间的危害物。当武器配置引起支持时,武器配置积极锁定模式并应对一起政策措施,与此同时蜂鸣器报警器装置,报警器装置灯闪灼。超重警告,测试到任务斗超重时,组织体制警告。app可延时间,而且在具体措施中积极调平,保护工作公司职员幽静支配。没电、油尽的区域下,可联纳告急返航制度,降落APP。无痕塑料履带,可双曲线走,可原地打转驻车制动;配搭方面:92号汽油发动机/静音机+互换机械设备;铝合金板属成就斗,
手艺参数
- 型号:GTZB12型臂架式起落任务平台
- 最大功课幅度:8.6m/200kg
- 平台尺寸(长×宽×高):1m×0.7m×1.1m
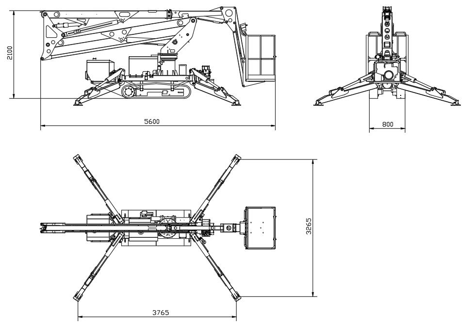
- 缩短尺寸(长×宽×高):5.6m×0.8m×2.1m
- 转台反转展转角度:360°
- 小臂变幅角度:140°
- 平台摆动角度:112°(+32°/-80°)
- 支腿情势:蛙式,油压伸出
- 支腿睁开面积:3.765×3.265m
- 行走体例:液压行走/橡胶履带
- 行走速率:0-3km/h
- 爬坡才能:30%
- 最小转弯半径:2.8米
- 液压油箱:45L
- 双动力:汽油/柴油+单相机电(2.2KW)
- 自重:2200kg
- 行走装配:接地比压:36Kpa
- 液压油箱容积:38L
布局表示图

天资证书

下空白页内部
最新产物更新中..